备注说明
龙华中心·创智产业中心|独立红本厂房
【项目整体信息】
【占地面积】80394.6㎡
【建筑面积】约85万方
【容积率】7.7
【绿化率】35%
【业态组成】住宅、公寓、商业、办公、厂房、产业研发、学校、配套宿舍八大业态
区域价值
大湾区国际化创新型中轴新城深圳“十四五”规划对龙华的定位为深圳中部综合服务中心、大湾区国际化创新型中轴新城,与南山/罗湖/福田中心并驾齐驱;
数字经济圈中央活力区龙华12个产业区块串联成圈,连接成占地60平方公里,打造未来产值超万亿的数字经济圈
交通价值轨道交通:临近地铁25号线华富站(规划中)、地铁6号线羊台山东站(2KM),通达全市各个区域城际交通:一个红绿灯直达龙大高速、沈海高速,30分钟畅行深莞惠城市交通:深华快速路(建设中)、侨城东路北延线(建设中),20分钟直达南山福田CBD和其他核心区域
【创智产业中心基础信息】【占地面积】11176.30㎡【可售建筑面积】79540㎡【产权年限】50年【套数】60套【绿化覆盖率】30%【停车位】358个【建筑面积】约1212-4960㎡【柱间距】9m X 9.6m、9m X 10m【层数】20层【层高】首层:6m;2-6层:5.4m;7-20层:4.5m【荷载】首层:1.5T;2-3层:1T;4-12层:0.85T;13-20层:0.65T【电梯】9台客梯,8台货梯,货梯:开门宽1.8m,长2.4m,荷载3T
[图片]
【产品优势】
稀缺产品:可售型生产研发用房(M1),每户可独立分割,享有独立红本
高标品质:层高4.5-6米,承重0.65-1.5吨,柱距大于9米,实用率高
空间灵活:单套面积约1212.98—4960㎡,根据需求灵活配置资产
用途多样:可集研发、生产、中试、检测、展示、总部形象办公等功能于一体
工业上楼:3吨货梯+每户吊装窗口,专配卸货平台和吊装平台,工业设备可上楼
企业形象:玻璃幕墙外立面+高质感铝板,高颜值、高品质彰显企业高端形象
绿色生态:采用退台式绿化、屋顶花园等生态设计理念,打造绿色生态花园式研发生产用房
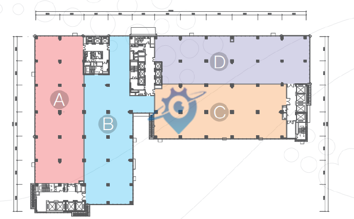
首层户型建筑面积:A户型约2069.27㎡;B户型约2067.27㎡卸货区:481.99㎡层高:6m荷载:1.5T柱距网:9m X 9.6m、9m X 10m
2-12层户型建筑面积:A户型约1215.43㎡;B户型约1310.25㎡C户型约1221.53㎡;D户型约1212.98㎡层高:2-6层:5.4m;7-12层:4.5m荷载:2-3层:1T;4-12层:0.85T柱距网:9m X 9.6m、9m X 10m货梯:8台;尺寸:开门宽1.8m,长2.4m,荷载3T客梯:9台;荷载1.35T
13-19层户型
建筑面积:A户型约1395.56㎡;B户型约1437.18㎡
层高:13-19层:4.5m
荷载:13-19层:0.65T
柱距网:9m X 9.6m、9m X 10m
货梯:4台;尺寸:开门宽1.8m,长2.4m,荷载3T
客梯:6台;荷载1.35T
13层退台面积:约1793.52㎡





